GROUPE SCOLAIRE DE LARRINGES

Située sur le plateau de Gavot, entre lac et montagnes, la commune rurale de Larringes bénéficie d’un cadre naturel préservé. Son école, édifiée en 1994 en contrebas de l’église et de la salle des fêtes, occupe une place centrale dans le coeur des habitants et s’intègre harmonieusement dans le paysage bâti local.

Le programme de restructuration et d’agrandissement mettent en valeur les qualités spatiales de l’établissement, notamment la diversité de ses volumes et de ses ambiances. Toutefois, l’état des lieux révèle un certain nombre de dysfonctionnements et de désagréments, qu’il est nécessaire de corriger à l’occasion de ce projet.

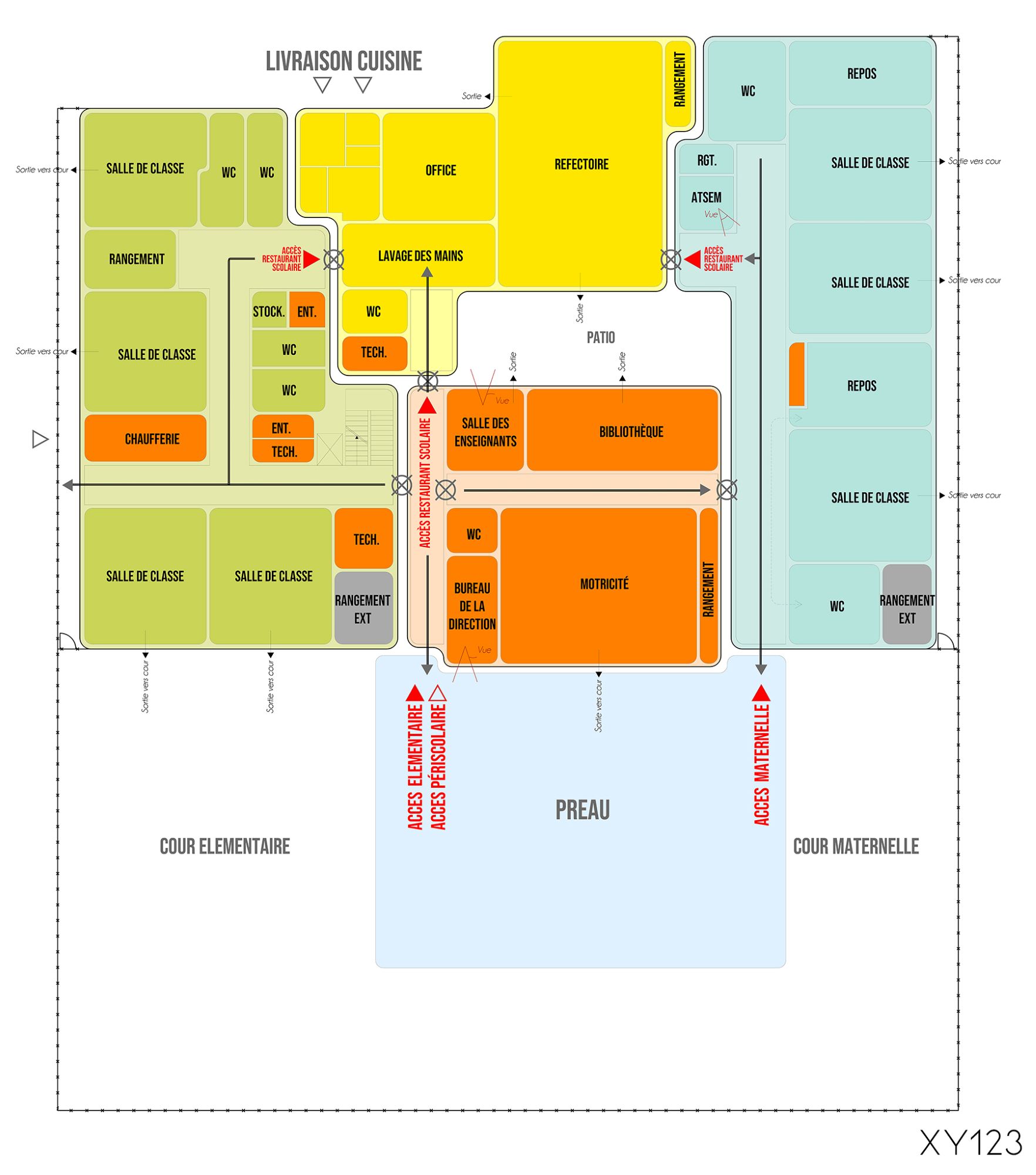
L’extension du groupe scolaire prévoit l’ajout de deux entités nouvelles, tout en conservant l’organisation actuelle de la partie existante. Néanmoins, le schéma fonctionnel proposé présente une faiblesse importante : il ne permet pas un accès direct et abrité à la demi-pension pour les plus jeunes, qui doivent soit traverser l’école élémentaire, soit sortir à l’extérieur pour rejoindre le réfectoire.

Dans une approche plus globale, nous avons choisi de repenser l’ensemble du site en valorisant pleinement son potentiel et les locaux existants. Ainsi, nous proposons de transformer l’actuelle salle de sport en restaurant scolaire, et de réaménager la bibliothèque et la salle des professeurs pour y installer l’office. En parallèle, nous reconstruisons la salle de sport, la bibliothèque, la salle des professeurs ainsi que le bureau de la directrice.

Ces espaces communs sont rassemblés dans une trame centrale, située à l’interface des deux écoles, facilitant un accès direct et indépendant pour chacune d’elles. Le préau partagé prend place dans le prolongement de cette trame. Doté d’une structure remarquable et d’un volume généreux, il confère une nouvelle identité au groupe scolaire, tout en offrant une grande polyvalence d’usages : activités ludiques, sportives ou festives, pendant et hors du temps scolaire.

Il en résulte un projet compact, clair et lisible, aussi bien à l’intérieur qu’à l’extérieur. Cette compacité contribue à améliorer la performance énergétique des bâtiments de manière passive et permet de préserver une grande partie des espaces extérieurs paysagers.

Les aménagements extérieurs sont entièrement repensés pour sécuriser et séparer les flux, en favorisant les déplacements doux, notamment en lien avec le centre du village et la salle des fêtes. Un mail piéton principal relie la route de la Touvière aux bâtiments emblématiques du village – mairie, église, salle des fêtes et école – créant une connexion forte au sein du tissu communal.

Le projet paysager assure une transition douce avec le paysage pastoral environnant, en faisant pénétrer la nature jusque dans l’école. Les choix fonctionnels forts qui sont proposés n’ont qu’un impact limité sur le coût des travaux. De plus, le phasage rigoureux garantit un chantier sécurisé en site occupé, comme nous avons su le faire sur de nombreux projets similaires.

Pour Larringes, nous avons ainsi imaginé une école fonctionnelle, inclusive, ouverte sur le village, véritable vecteur de lien social, et parfaitement intégrée dans son environnement rural préservé.

Date:
LIEU

LARRINGES

MAITRE D'OUVRAGE

Mairie de Larringes

COUT TRAVAUX

3 017 400 €HT

SURFACE

1 824 m²

CONCOURS NON LAUREAT

PERFORMANCES THERMIQUES

RT Réno et RE 2020

PAYSAGISTE

BUREAU FLUIDES

BUREAU STUCTURE

ACOUSTICIEN

Pierre PASQUINI

BUREAU VRD